Ny hyttemodell med bla. 4 soverom, stort bad, toalettrom og åpen kjøkken- og stueløsning.
Tyslandhytta 5
Tyslandhytta 5
Bebygd areal(BYA): 102 m2
Bruksareal(BRA): 69,9 m2
Gulvflater: Total 94,7 m2
1. etasje: 64 m2
Bod: 3,1 m2
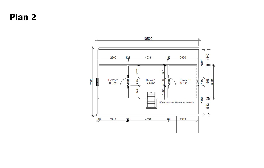
Loft/hems: 26,8 m2.
Loft/hems er under 189,5 cm og regnes ikke som målbart areal.
Pris fra kr. 2 590 000,-
Tomt, graving og omkostninger kommer i tillegg.
Til salgs



Byggteknisk informasjon:
Hytta er bygd i bindingsverk med 148mm tykkelse i vegger med 15 cm isolasjon. På innsiden er det lagt fuktsperre og lektet ut med 5 cm isolasjon. Totalt 20 cm isolasjon i alle vegger.
muse- og smågnagersikring er montert rundt hele hytta.
Alle materialer til reisverk er C24 fra Moelven i Trysil – lokalt sterkt trevirke.
Tak
Takverket er solide takstoler produsert av Optimera Byggsystemer. Her slipper man å tenke på å måke snø av taket når det er vanlig vinter. Vindsperre og 5 cm lufting. 18mm OSB-plater og grå shingel, som er vedlikeholdsfri.
Lufting fra yttervegger går opp til toppen av taket, der det er montert møneplater/lufting. Takrenner i sort stål og nedløp i kjetting.
Heldekkende pipebeslag i svart metall.
Dører og vinduer
2-lags energi & sikkerhetsglass vinduer 2S laminert og herdet fra Natre Vinduer på Gjøvik.
Hvitmalte terrassedører med stort glassfelt fra samme leverandør.
Ytterdør med vindu fra Sweedoor.
Innvendige dører, Odin formpresset fra Harmonie.
Utvendig
Utenpå reisverket er det montert Isola aluminiumsstag som stiver av hvert hjørne på veggene. Vindsperre rundt alle vegger og 36 mm lufting. Liggende dobbelfals kledning.Det er montert insektnetting i alle gesimskasser.
Utelamper med opp/ned lys på hvert hjørne – totalt 7 stk.
Taklampe ved inngangsparti.
Utekran utenfor toalettrom.
Innvendig
Innvendig høyde i 1 etg er ca. 223cm. På loft/hems høyden 189,5 cm på midten. Ca 100 cm ute ved kneveggen.
Alle innvendige vegger er isolert med Glava. Hvitlasert skygge skrå panel i alle tak.
Hvitmalte utforinger til alle vinduer og dører.
Hvitmalte profilerte 70mm lister i hele hytta.
Panelovner i alle rom der det ikke er varmekabler.
Alle innerdører er hvitmalte.
Bildegalleri


















Detaljbeskrivelse av rom
Bad:
Varmekabler i gulv. Våtromsplater på vegger og membra utført etter våtromsnormen.
30x30 cm mørk grå gulvfliser Eivissa Carbon. 5x5 cm mosaikk i dusjen.
Innfellbare 90x90 dusjdører med svart profil.
120 cm Lind Luxery, svart farge dobbel baderomsinnredning, med skuffer. Praktisk speilskap med ledlampe over.
30x60 fliser Titanio beige på veggene.
Svarte armaturer og dusjkran. Svart avtrekksvifte og svarte brytere og stikkontakt,
WC gulvmodell
Oyster lampe.
Vindu 60 x 60
Vanninntak med varmekabler i røret, hovedstoppekran, 200 liter varmtvannsbereder heat injection, opplegg til vaskemaskin, rør i rør system i tilfelle lekkasje.
Toalettrom:
WC gulvmodell.
60 cm Lind Continental baderomsinnredning med speilskap. Ledlampe over speilskap,
Oyster taklampe. Stikkontakt. Avtrekksvifte.
Panel på vegger, parkettlaminat på gulv. panelovn


Kjøkken:
Kjøkkeninnredning Lerhyttan fra Ikea, 60x120 kjøkkenøy med fliser på toppen.
Kombinert kjøl/frys, stekovn med pyrolyse, koketopp induksjon, oppvaskmaskin og mikro. Avtrekksvifte. Aqua-stop under vask og oppvaskmaskin.
Ledskinne med dimmer og 3 spotter over kjøkkenøy, chef Ledlamper under overskap.
Vindu 110 x 110 over kjøkkenvask.
2 store vinduer på 110 x 160 ved spisebord.
Stue:
Kronotex Mammut Oak Beige parkettlaminat på gulv, furupanel skygge skrå, hvitmalte profilerte lister og utforinger, hvitlasert skygge skrå panel i tak.
3 stk doble stikkontakter, 6 stk con sposkinne med dimmer, 3 store vinduer på 110 x 160 og terrassedør 90 x 200 med utgang til terrasse. Panelovn.
Peisovn Aduro 9, med glassplate og stålpipe.
Soverom 1:
Kronotex Mammut Oak Beige parkettlaminat på gulv, furupanel skygge skrå, hvitmalte profilerte lister og utforinger, hvitlasert skygge skrå panel i tak.
3 stk doble stikkontakter, taklampe oyster, plass til garderobeskap, stort vindu 110 x 110. Panelovn.
Soverom 2:
Kronotex Mammut Oak Beige parkettlaminat på gulv, furupanel skygge skrå, hvitmalte profilerte lister og utforinger, hvitlasert skygge skrå panel i tak.
3 stk doble stikkontakter, taklampe oyster, plass til garderobeskap, 60 x 110 vindu. Panelovn.
Soverom 3 (loft):
Kronotex Mammut Oak Beige parkettlaminat på gulv, furupanel skygge skrå, hvitmalte profilerte lister og utforinger, hvitlasert skygge skrå panel i tak.
4 stk doble stikkontakter, Nirvana 2 LED vegglampe, 80 x 110 vindu. Panelovn.
Soverom 4 (loft):
Kronotex Mammut Oak Beige parkettlaminat på gulv, furupanel skygge skrå, hvitmalte profilerte lister og utforinger, hvitlasert skygge skrå panel i tak.
4 stk doble stikkontakter, Nirvana 2 LED vegglampe, 80 x 110 vindu. Panelovn.
Gang:
Varmekabler i gulv, 60x60 Cemento Usurato gulvfliser, trapp til loft, stikkontakter, god plass til skap og oppbevaring.
Utvendig bod:
Sikringsskap. Astro ur til styring av utelys. Egen alarm til septiktank.
isolert, med panel på vegger. Stikkontakter og panelovn.


Kronotex Mammut Oak Beige parkettlaminat på gulv, furupanel skygge skrå, hvitmalte profilerte lister og utforinger, hvitlasert skygge skrå panel i tak.
6 stk doble stikkontakter, spotskinne i trappa – begge med dimmere, Panelovn.
Ute:
Overbygd inngangsparti med taklampe Platina.
7 stk oppned lamper rundt hytta. Utvendig stikkontakter.
Utekran vann utenfor toalettrom.
Vei og parkeringsplass er ferdig gruset.
Mulighet for å bygge garasje/bod på opptil 40m2.
HER LIGGER TOMTENE
Vi hjelper deg med å realisere hyttedrømmen!
Ikke nøl med å ta kontakt dersom du har spørsmål knyttet til våre hytter eller tjenester.





